O Véu da Luz: Uma Sinfonia de Privacidade e Clareza

A Casa Véu revela o equilíbrio sublime entre intimidade e iluminação, convidando à reflexão sobre a dualidade do espaço habitado.

Shade House / Massive Order - Image 1 of 25

Na contemplação da Casa Véu, somos convidados a adentrar uma narrativa espacial onde a dança entre privacidade e luz natural se desenrola com uma precisão quase poética. Esta residência, um tributo à arte de harmonizar o que frequentemente se apresenta como antagônico, emerge como um testamento ao design meticuloso e à busca incessante pelo equilíbrio.

Shade House / Massive Order - Interior Photography
Shade House / Massive Order - Interior Photography

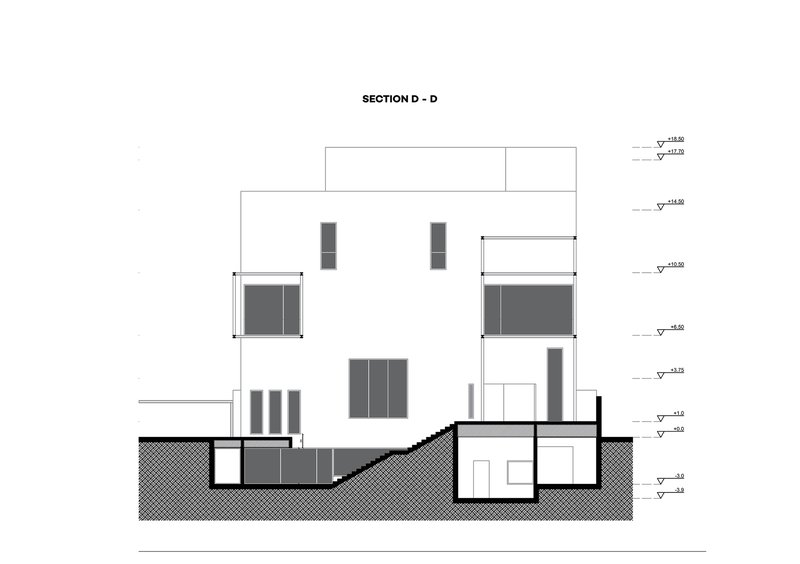
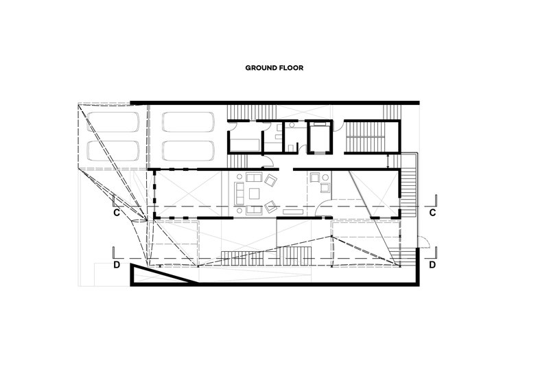
Ao nos aproximarmos da fachada leste, somos recebidos por um aparato que se assemelha a um véu etéreo, uma cortina diáfana que não apenas protege, mas também revela. Este elemento, concebido como uma tela de intimidade, resguarda o pátio rebaixado e o majestoso 'Grande Salão' no subsolo. No entanto, longe de ser uma barreira opaca, este véu atua como um maestro, orquestrando a entrada da luz do dia com uma maestria que beira o sublime.

Shade House / Massive Order - Interior Photography, Glass
Shade House / Massive Order - Interior Photography, Glass

Composto por uma sequência de sombras triangulares entrelaçadas, este sistema de triagem coreografa aberturas calculadas que permitem que a luz do sol penetre nos espaços de convivência ao ar livre de forma seletiva e graciosa. Cada raio de luz que atravessa este véu é uma pincelada de claridade que enriquece a experiência sensorial do espaço, transformando o ordinário em extraordinário.

Shade House / Massive Order - Interior Photography, Balcony
Shade House / Massive Order - Interior Photography, Balcony

A sensação de estar imerso neste ambiente é um estudo em contrastes e complementaridades. A luz, ao mesmo tempo filtrada e abundante, cria uma tapeçaria de sombras e brilhos que dança sobre superfícies cuidadosamente escolhidas. Materiais nobres, como madeira e pedra, dialogam harmoniosamente com o jogo de luz e sombra, oferecendo uma textura tátil que convida ao toque e à exploração.

Shade House / Massive Order - Interior Photography
Shade House / Massive Order - Interior Photography

A Casa Véu não é apenas um exercício de design arquitetônico, mas uma meditação sobre o significado de habitar. Ela nos desafia a reconsiderar nossas noções de privacidade e abertura, de escuridão e iluminação. Cada interação de luz e sombra é uma metáfora para a interação humana no espaço, uma dança contínua entre a exposição e o resguardo, entre o ser e o não ser.

Shade House / Massive Order - Exterior Photography, Brick
Shade House / Massive Order - Exterior Photography, Brick

Assim, ao nos perdermos nos recantos desta residência, encontramos não apenas um abrigo físico, mas um convite à introspecção e à contemplação. A Casa Véu nos lembra que, na arquitetura, assim como na vida, o verdadeiro luxo reside na habilidade de equilibrar com graça o que parece estar em oposição, criando uma harmonia que é ao mesmo tempo visível e invisível, tangível e intangível.

Shade House / Massive Order - Interior Photography, Glass
Shade House / Massive Order - Interior Photography, Glass

Na serenidade deste espaço cuidadosamente articulado, encontramos uma nova forma de apreciar o mundo ao nosso redor, uma dança entre o oculto e o revelado, onde cada passo é uma celebração do espaço e da luz.

Shade House / Massive Order - Image 8 of 25
Shade House / Massive Order - Image 8 of 25

Inscreva-se

Ensaios ocasionais sobre espaço, forma e arquitetura da percepção.