O Refúgio Poético: A Essência do Vazio em Segovia

Em um vilarejo nas Montanhas de Riaza, um antigo estábulo renasce como um espaço de contemplação e serenidade.

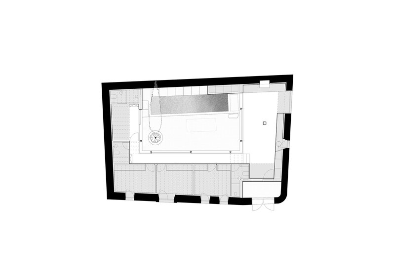
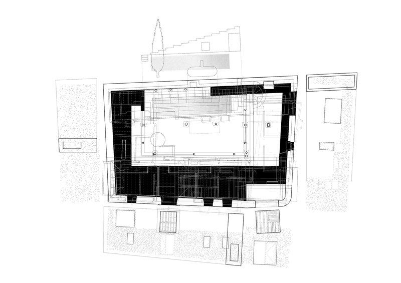
Emptied House – Seasonal Refuge in Soto de Sepúlveda, Segovia / estudio veintidós - Image 1 of 32

Aninhado nas tranquilas paisagens do vilarejo nas Montanhas de Riaza, em Segovia, um projeto arquitetônico ousa desafiar as convenções tradicionais da reocupação de ruínas. Esta casa, concebida pelo visionário Estudio Veintidós, surge como uma ode ao vazio e à simplicidade, encapsulando uma essência quase espiritual. Ao se aproximar da estrutura, o visitante é recebido pelos vestígios de um antigo estábulo, cujas paredes de pedra bruta e terra compactada sussurram histórias de um passado distante. O tempo, impiedoso, havia reduzido as coberturas e divisórias internas a um estado de ruína, permitindo que a natureza se insinuasse nas suas brechas. No entanto, é precisamente desse estado de abandono que nasce a inspiração do projeto. Os arquitetos optaram por esvaziar o volume construído, abraçando o invólucro pré-existente como fundação e limite, numa decisão que desafia a lógica de restaurar a ocupação total original. Ao invés de reconstruir o que se perdeu, eles libertaram um espaço central, um vazio que passa a articular a nova vida doméstica. A luz natural dança por entre as aberturas meticulosamente posicionadas, criando um jogo de sombras que evoca uma sensação de tempo suspenso. Os materiais escolhidos, em sua crueza e honestidade, dialogam com a paisagem circundante, promovendo uma experiência sensorial onde o toque frio da pedra contrasta com a suavidade da brisa que penetra no ambiente. Cada passo dentro deste refúgio é uma meditação sobre a presença e a ausência, sobre o que significa realmente habitar um espaço. A essência do projeto reside na capacidade de evocar reflexão, oferecendo um santuário onde o silêncio é a linguagem predominante. É um convite a reconsiderar o que entendemos por lar, a abraçar o vazio como parte integral da experiência humana. Em um mundo saturado de estímulos, esta casa em Soto de Sepúlveda se coloca como um manifesto contra o excesso, celebrando a beleza do imperfeito e do inacabado. A presença sutil da arquitetura não compete com a paisagem, mas a complementa, permitindo que o espírito do lugar se manifeste em toda a sua plenitude. Ao final, a experiência de estar neste espaço transcende o mero habitar, transformando-se em um ritual de reconexão com o essencial, com aquilo que realmente importa. Esta obra é mais do que um projeto arquitetônico, é uma filosofia de vida que nos convida a abraçar o vazio e encontrar nele a plenitude.