Casa com Telhado Doblado / ISHIZAKI ARCHITECTS

Uma obra que harmoniza espaço e natureza

Folded Roof House / ISHIZAKI ARCHITECTS - Exterior Photography, Wood

A descrição textual fornecida pelos arquitetos revela a essência desta residência, situada em uma área residencial do bairro Shimizu, na cidade de Shizuoka. Circundada por casas de baixo número de andares e por um edifício de escritórios de três andares, a casa encontra-se em um contexto tranquilo, com uma escola primária ao sul, além de um ambiente que se destaca pela simplicidade e harmonia.

Folded Roof House / ISHIZAKI ARCHITECTS - Interior Photography, Wood, Beam
Folded Roof House / ISHIZAKI ARCHITECTS - Interior Photography, Wood, Beam

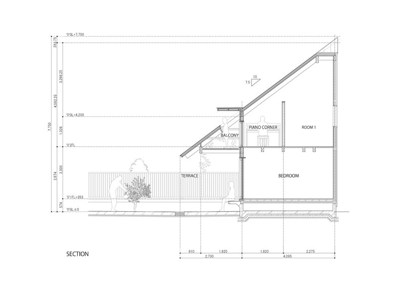
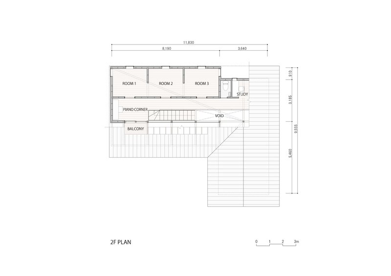
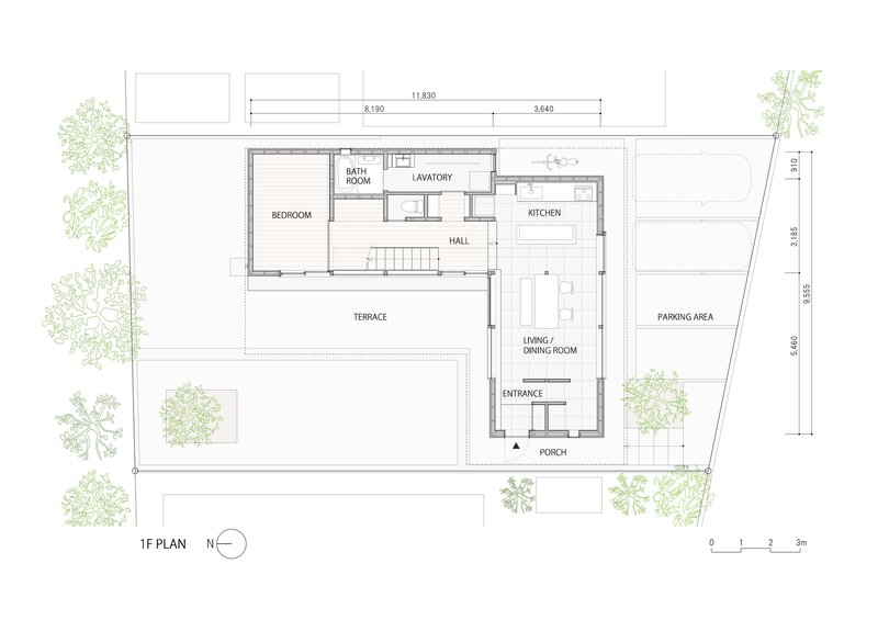
O plano arquitetônico posiciona um edifício em forma de L no centro do terreno, onde um estacionamento voltado para a via sul e um jardim ao norte se complementam, criando uma experiência que vai além do mero habitar. O telhado amplo, que se estende tanto para os espaços interiores como para os exteriores, foi meticulosamente projetado para envolver todo o terreno, buscando a criação de qualidades espaciais expansivas e profundas.

Folded Roof House / ISHIZAKI ARCHITECTS - Interior Photography, Wood, Beam
Folded Roof House / ISHIZAKI ARCHITECTS - Interior Photography, Wood, Beam

A presença do jardim, concebido como um 'espaço em branco', se torna um convite ao entorno, permitindo que a luz e o vento fluam suavemente em direção às residências vizinhas, promovendo um diálogo entre os espaços e as pessoas. Este projeto não é apenas uma casa, mas uma reflexão sobre como a arquitetura pode interagir com a comunidade, criando um local onde a vida se desdobra em sua plenitude.

Folded Roof House / ISHIZAKI ARCHITECTS - Interior Photography, Stairs, Wood, Beam
Folded Roof House / ISHIZAKI ARCHITECTS - Interior Photography, Stairs, Wood, Beam

Inscreva-se

Ensaios ocasionais sobre espaço, forma e arquitetura da percepção.